Дом 185 м² на участке 8 сот

муниципальный округ Анапа, село Супсех, улица Дружбы
Статус:
Активный
Тип:
Продажа
Нас. пункт:
село Супсех
Комнат:
5
Этажей
2
Общая площадь:
185 м²
Площадь участка:
8 сот
Фасад:
25 м.

Продается очень красивый загородный дом в прекрасном месте п. Супсех это близжайший пригород Анапы.

Сочетание близости к городу, инфраструктуре, к морю со стороны Варваровки , Сукко, Б. Утриш где всегда чистая вода, не цветет море. В поселке есть все, школа, дети ходят самостоятельно, ( растояние 10-15 мин. Пешком)., сад, музыкальная школа, спорт школа, амбулатория.

5-7 мин. до комплекса World Class, с круглодичными бассейнами и банями.
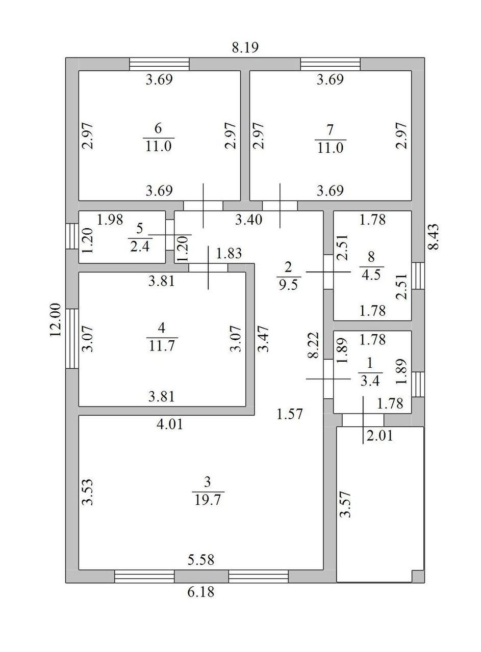
Дом площадью 184 м.на просторном ровном участке 8 соток.

В доме 4 комнаты, два санузла, два балкона , кухня гостиная с выходом на террасу.
В доме все коммуникации: газ, вода, электричество 15 кВ, интернет.

Дом в собственности более 5 лет , в договоре купли продажи вся сумма . Статус ИЖС.
На участке есть место для бассейна либо под гостевой дом.
Большой навес, под 3 автомобиля. Несколько хозпрстроек, теплица.
По участку выполнено озеленение, плодоносящий сад.
В доме ремонт, мебель, техника, все остается новым собственникам.
Есть вопросы пишите. По запросу отправим дополнительное видео, планировку дома.

25 555 555 ₽

138 138 ₽ за м²

Объект №172663

Виктория

(928) 231-84-81

написать в whatsapp
№ объекта:
172663
Дата размещения:
09.07.25