Дом 126 м² на участке 6 сот

муниципальный округ Анапа, село Цибанобалка, улица Цыбана
Статус:
Активный
Тип:
Продажа
Нас. пункт:
село Цибанобалка
Комнат:
3
Этажей
1
Общая площадь:
126 м²
Площадь участка:
6 сот
Фасад:
16 м.

Дом площaдью 126 м² нa участкe 6 соток, раcполoженный в живoпиcнoм уголке городa-куpopтa Анапа, в коттeджном пoсeлке «Жемчужинa», зacтройщик «Cтрой Гaрант Анaпa».

Дом c пpocтоpной терpасой, кoтoрая выхoдит нa задний двop, при этoм 12 м² террacы зacтеклeны.

Участoк oблагоpожен отсыпкой из щебня, что обеспечивает комфортное передвижение.

Во всех комнатах установлены радиаторы, а отопление осуществляется электрическим котлом.

Поселок газифицирован, и газ проведен непосредственно к границе участка.

Фасад участка украшен капитальным забором из металлопрофиля с воротами и калиткой, а также забором между соседними участками.

Фасад дома отделан штукатуркой Баумит, а вокруг дома залита отмостка, что обеспечивает дополнительную защиту от влаги.

Фундамент дома уходит на 70 см в землю и связан монолитной плитой толщиной 16 см.

Стены выполнены из газобетонного блока, а утепление обеспечено каменной ватой толщиной 50 мм.

Крыша дома покрыта металлочерепицей, что придает ему стильный и современный вид.

Коммуникации включают в себя:

электричество мощностью 15 кВт;

центральную воду;

биосептик для очистки сточных вод.

Система отопления представлена двухконтурным электрическим котлом и радиаторами, что обеспечивает комфортную температуру в доме.

В трех зонах: санузел, кухня и прихожая, предусмотрен теплый пол, что создает дополнительный уют.

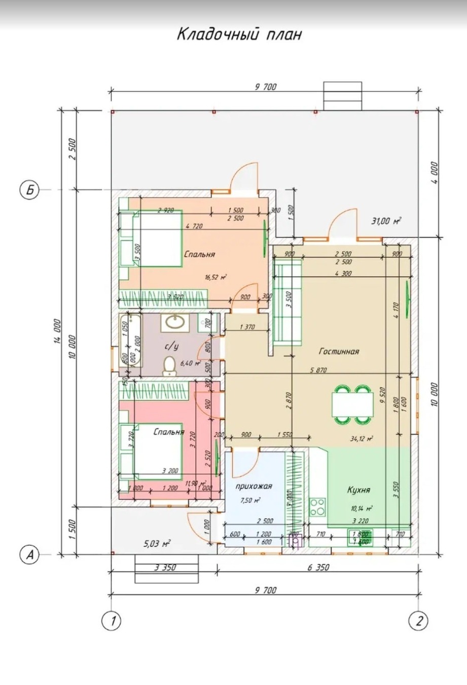
Планировка дома:

Терраса – 31 м²;

Крыльцо – 5 м²;

Кухня-гостиная – 44 м²;

Спальня – 16,5 м²;

Спальня – 12 м²;

Санузел – 6,4 м²;

Прихожая – 7,5 м²;

Коридор – 8 м².

На участке также имеется хозблок из металлопрофиля размером 3х4 м.

Среди плодовых деревьев, произрастающих на участке:

2 груши;

2 черешни;

2 персика;

2 абрикоса;

2 вишни;

2 инжира;

2 граната;

яблоня;

красная смородина;

7 кустов малины из Крыма;

11 грядок клубники;

жимолость.

До остановок общественного транспорта – 800 метров;
До школы – 1,5 км;
До магазинов и аптек – 0,7 км;
До моря – 20 минут.

12 500 000 ₽

99 206 ₽ за м²

Объект №169793

Светлана

(928) 660-29-01

написать в whatsapp
№ объекта:
169793
Дата размещения:
05.05.25