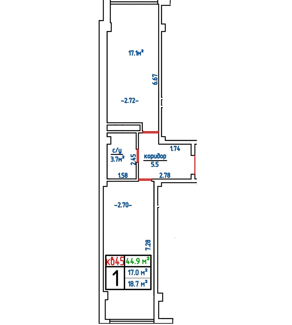
1-к. квартира 45 м², 2/3

муниципальный округ Анапа, село Супсех, Невская улица
Статус:
Активный
Тип:
Продажа
Нас. пункт:
село Супсех
Комнат:
1
Этаж:
2
Общая площадь:
45 м²
Жилая площадь:
17 м²

Вашему вниманию квартира с видом на море!!!

Квартира расположена в ближайшем пригороде Анапы п. Супсех на живописном высоком берегу Черного моря.
Поселок примыкает к городу, но позволит Вам ощутить все преимущества загородной жизни. Малоэтажные дома, вид на море и отсутствие городской суеты создают уютную атмосферу для жизни.

Комплекс состоит из трех секций. Коммуникации центральные: электричество, вода, канализация,газ. На территории предусмотрена детская площадка и парковка.
В пешей доступности магазины, аптеки, школа.
Так же расположение поселка позволяет пользоваться всей городской инфраструктурой.

5 850 000 ₽

130 000 ₽ за м²

Объект №180036

Татьяна

(928) 402-10-14

написать в whatsapp
№ объекта:
180036
Дата размещения:
26.03.26

Похожие объекты