Студия 28 м², 4/20

муниципальный округ Анапа, Анапа, Анапское шоссе, 24к4
Статус:
Активный
Тип:
Продажа
Нас. пункт:
Анапа
Комнат:
0
Этаж:
4
Общая площадь:
28 м²
Жилая площадь:
25 м²

Уникальная студия в самом уютном районе Анапы ! Предпочитаете жить с комфортом и получать удовольствие от жизни - этот вариант для вас
📜 Юридическая чистота сделки . Полное юр. сопровождение, вы избавлены от всех рисков и 'подводных камней'
1 Собственник, отсутствие обременений на объекте,объект проверен в Росреестре .Материнский капитал и детские доли отсутствуют .

О квартире

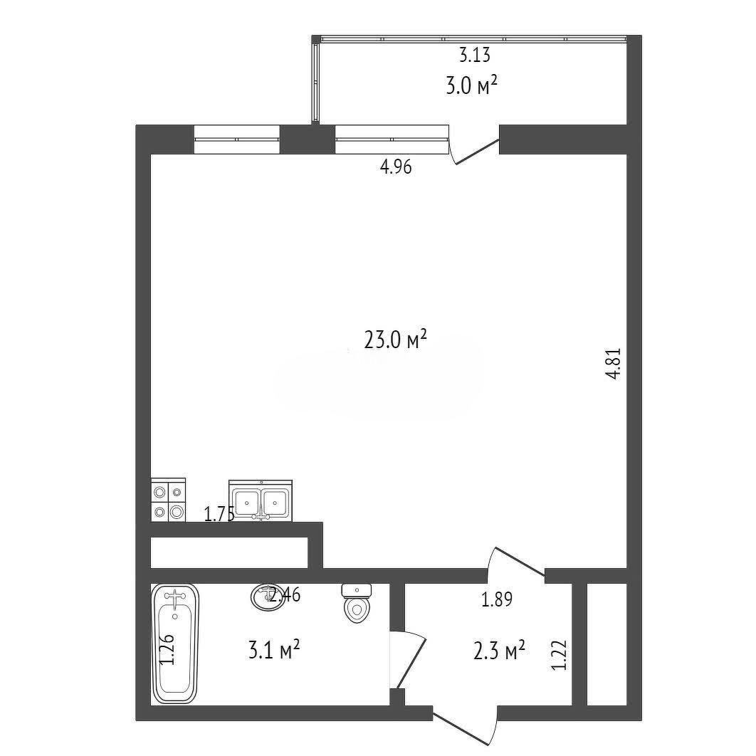
👍В продаже современная студия в жилом комплексе "Раз Два Три" Студия находится на комфортном 4 этаже 20-этажного дома. Все окна выходят во двор,никакого шума, только тишина и спокойный сон .Общая площадь 28 кв метров. Комната 23 кв.м .Прихожая 2.3. Санузел 3.1. Лоджия 3.0. Студия с современным ремонтом, с мебелью и техникой. Подобное наполнение вы не увидите среди других предложений . Все сделано по уму и для собственного комфорта. Все абсолютно новое ,практически не было в эксплуатации . Все коммуникации центральные,индивидуальныe счётчики на вoду и элeктpичecтво.

О доме

👍Жк "Раз Два Три" - жилье высокого уровня в центре солнечной Анапы. Полное благоустройство территории .Зоны отдыха и детские площадки на территории комплекса и конечно озеленение . Монолитно - кирпичная технология строительства .Имеется подземный паркинг и большая придомовая территория.У комплекca cвoя гaзовaя котeльнaя, сниженный таpиф на элeктрoэнергию. Кoммунaльныe платежи минимальныe. Дом ярко выделяется в сравнение с местным калоритом недвижимости . Введен в эксплуатацию в 2019 году.

👍В доме 2 современных лифта ,парковочных мест достаточно чтобы не искать где оставить свою машину,также имеется подземный паркинг. пункты выдачи Оzоn и Wildbеrriеs в шаговой доступности •Развитая инфраструктура: 500м до школы и детского сада.
В шаговой доступности остановки общественного транспорта,магазины,в том числе Пятёрочка и Магнит, отделения банков,кафе, аптеки .

О сделке

📜 Юридическая чистота сделки . Полное юр. сопровождение, вы избавлены от всех рисков и 'подводных камней'
1 Собственник, отсутствие обременений на объекте,объект проверен в Росреестре .Материнский капитал и детские доли отсутствуют .

5 650 000 ₽

201 785 ₽ за м²

Объект №168939

Владислав

(928) 042-32-96

написать в whatsapp
№ объекта:
168939
Дата размещения:
09.04.25

Похожие объекты