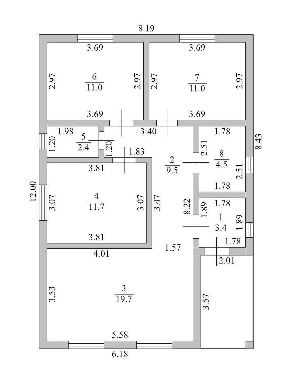
Дом 77.7 м² на участке 6 сот

муниципальный округ Анапа, станица Анапская, Совхозная улица
Статус:
Активный
Тип:
Продажа
Нас. пункт:
станица Анапская
Комнат:
4
Этажей
1
Общая площадь:
77.7 м²
Площадь участка:
6 сот
Фасад:
20 м.

Продаётся дом в Центральной части Анапской 5 минут до школы.
В этом районе станицы, это очень хорошее место расположение.
Со всеми коммуникациями.
Школы, магазины , остановка и кафе в шаговой доступности .
Район парка.
ИНФРАСТРУКТУРА:Образовательная инфраструктура станицы Анапская представлена двумя школами №12 и №21, есть пять муниципальных детских сада,

В Станице Анапской, имеется свой рынок строительных материалов “Казачий” и продуктовый рынок “Николаевский”, он же является основным ЦЕНТРОМ АНАПСКОЙ.

Достопримечательности Православные храмы
Храм Вознесения Господня;
Часовня святого Николая Чудотворца.
мемориал Воинской Славы с Вечным Огнем, БОЛЬШОЙ ДЕТСКИЙ ПАРК.

Проверено в росреестре.

Этот дом — отличное место для жизни в спокойствии и уединении, при этом всего в нескольких минутах от всех благ цивилизации.
Звоните прямо сейчас!
Полное юридическое сопровождение сделки, документы проверены в Росреестре!

ЗВОНИТЕ или ПИШИТЕ, и скорее записывайтесь на показ !

9 200 000 ₽

118 404 ₽ за м²

Объект №171915

Виктория

(928) 231-84-81

написать в whatsapp
№ объекта:
171915
Дата размещения:
20.06.25