Дом 115 м² на участке 5 сот

муниципальный округ Анапа, станица Анапская
Статус:
Активный
Тип:
Продажа
Нас. пункт:
станица Анапская
Комнат:
3
Этажей
1
Общая площадь:
115 м²
Площадь участка:
5 сот
Фасад:
17 м.

Современный дом в станице Анапская.
В доме выполнена предчистовая отделка . До Магазина и остановки общественного транспорта 15 минут.Соседи прекрасные, все семейные.Школа №12 в 10 минутах как и 3 детских сада.
Парковочное место для автомобиля во дворе.

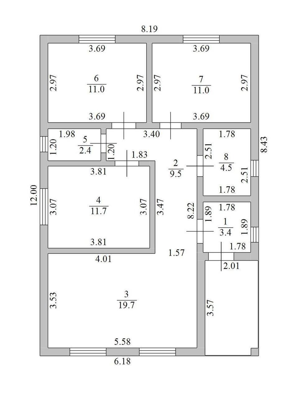
Дом общей площадью 115 кв2.
Площадь участка 5 сотки,
Очень удобное планировочное решение:
огромный светлый холл высотой.

ИНФРАСТРУКТУРА:Образовательная инфраструктура станицы Анапская представлена двумя школами №12 и №21, есть пять муниципальных детских сада,

В Станице Анапской, имеется свой рынок строительных материалов “Казачий” и продуктовый рынок “Николаевский”, он же является основным ЦЕНТРОМ АНАПСКОЙ.

Достопримечательности Православные храмы
Храм Вознесения Господня;
Часовня святого Николая Чудотворца.
мемориал Воинской Славы с Вечным Огнем, БОЛЬШОЙ ДЕТСКИЙ ПАРК.

Проверено в росреестре.

Этот дом — отличное место для жизни в спокойствии и уединении, при этом всего в нескольких минутах от всех благ цивилизации.
Звоните прямо сейчас!
Полное юридическое сопровождение сделки, документы проверены в Росреестре!

ЗВОНИТЕ или ПИШИТЕ, и скорее записывайтесь на показ !

11 800 000 ₽

102 608 ₽ за м²

Объект №178771

Виктория

(928) 231-84-81

написать в whatsapp
№ объекта:
178771
Дата размещения:
30.01.26