Дом 109 м² на участке 4.5 сот

муниципальное образование Новороссийск, хутор Семигорский, Луговая улица
Статус:
Активный
Тип:
Продажа
Нас. пункт:
хутор Семигорский
Комнат:
2
Этажей
1
Общая площадь:
109 м²
Площадь участка:
4.5 сот
Фасад:
16 м.

В ближайшем пригороде г.к.Анапа в хуторе Семигорский в продаже дома от застройщика как строящиеся так и готовые !
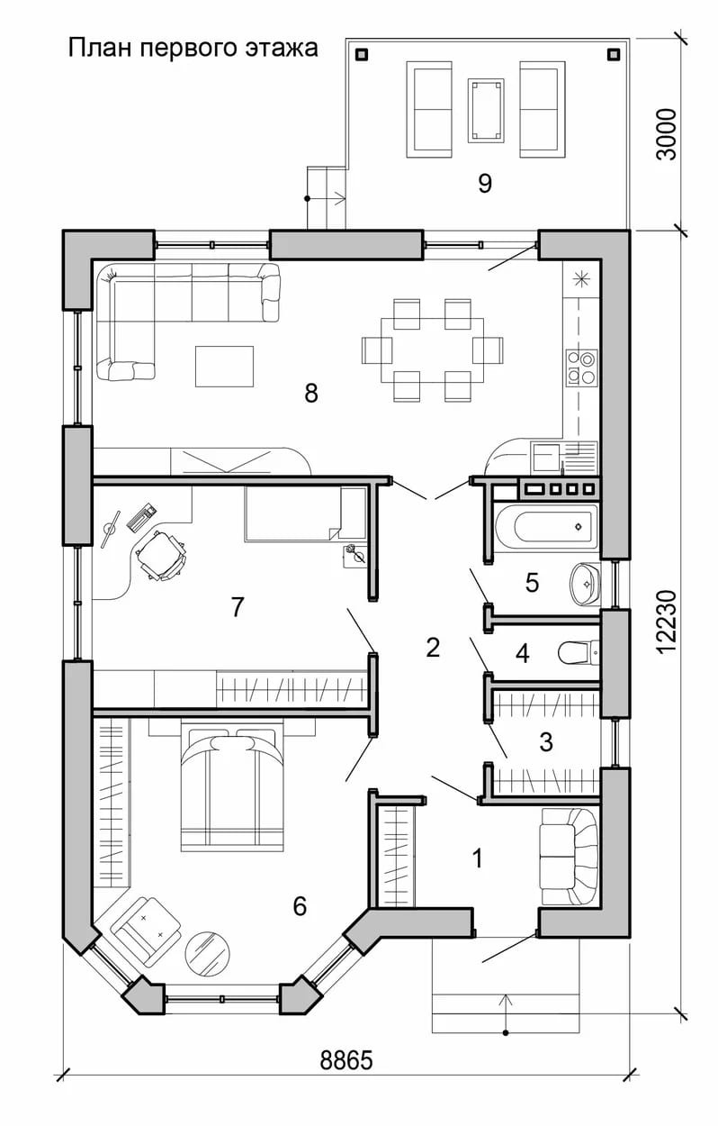
Дом общей площадью 109 кв м. на земельном участке 4,5 сотки земли.
Отличная планировка дома -две спальни, просторная кухня - гостиная с выходом на террасу, санузел раздельный, бойлерная, гардеробная.

Качественная предчистовая отделка
Коммуникации –свет 15кВ. канализация -септик, вода-скважина.
Район плотной застройки, тихое живописное место.
Инфраструктура-школа, детский сад, сетевые магазин, остановка общественного транспорта в шаговой доступности.

Любая форма оплаты!
Ипотека без первоначального взноса!

Помогаем оформить льготную ипотеку на выгодных условиях ( семейная ипотека, ипотека для IT специалистов !

7 500 000 ₽

68 807 ₽ за м²

Объект №154461

Татьяна

(928) 402-10-14

написать в whatsapp
№ объекта:
154461
Дата размещения:
21.05.24