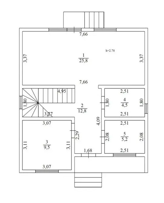
Дом 126 м² на участке 4.5 сот

городской округ Новороссийск, станица Раевская, улица имени Малоземельца Валентины Зинько
Статус:
Активный
Тип:
Продажа
Нас. пункт:
станица Раевская
Комнат:
4
Этажей
2
Общая площадь:
126 м²
Площадь участка:
4.5 сот
Фасад:
16 м.

Продается уютный дом по супер цене!!!
Станица Раевская, коттеджаная застройка с личной инфраструктурой!!!
Коттеджный поселок в процессе активной газификации, подземные газовые труды уже тянут по ул. Зинько.
Дом для большой семьи, просторный с красивым видом на горы!!!
В доме в общих комнатах на 1 этаже система теплый пол, по спальням и помещениям 2 этажа батареи.
В доме есть хозяйственной помещение (котельная), все подходит для установки газового котла.
В коттеджном поселке уже на этапе завершения большой торговый комплекс, парк и т.д. все инфраструктура будет внутри!!!
Школа на расстоянии 900 м
Садик 500м
Дом в предчистовой отделке, по запросу есть возможность сделать ремонт под Ваш вкус!!!
Участок под домом правильной квадратной формы с ровным фасадом. В конце улицы прекрасные виноградники!!!
Станица очень быстро развивается и цены растут, успейте купить по указанной цене!!!

7 700 000 ₽

61 111 ₽ за м²

Объект №180151

Лариса

(989) 774-97-59

написать в whatsapp
№ объекта:
180151
Дата размещения:
31.03.26