2-к. квартира 51 м², 13/15

муниципальный округ Анапа, Анапа, Анапское шоссе, 18
Статус:
Активный
Тип:
Продажа
Нас. пункт:
Анапа
Комнат:
2
Этаж:
13
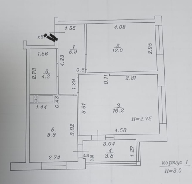
Общая площадь:
51 м²
Жилая площадь:
27.9 м²

СРОЧНАЯ ПРОДАЖА один собственник, квартира готова к продаже.

Квартира с открытым панорамным видом на море и город с панорамными окнами, где много света и простора для большой души.

Новый современный комплекс бизнес класса с современными дизайнерскими холлами с мягкими диванами, которые дарят теплое чувство с порога: ВЫ-ДОМА! Все окутано заботой и безопасностью начиная с входа в комплекс. В комплексе установлены два бесшумных грузопассажирских лифта, круглосуточное видеонаблюдение, видеодомофон. ИДЕАЛЬНЫЙ вариант для тех кто ценит КОМФОРТ, БЕЗОПАСНОСТЬ, УЮТ в сочетании с НОВЫМИ ТЕХНОЛОГИЯМИ.

Квартира удобной планировки с двумя изолированными комнатами 12 и 16.2 кв.м. с выходом на панорамный балкон. Качественная предчистовая отделка, оштукатурены стены, стяжка пола. Есть возможность сделать ремонт и обустройство жилого пространства под свой вкус и стиль жизни. Все коммуникации центральные, на все установлены индивидуальные приборы учета(свет, вода, отопление).

На охраняемой территории благоустроенная зона для прогулок с спортивными и детскими площадками на любой возраст. В шаговой доступности вся необходимая инфраструктура - школа, детский садик, продуктовые ГИПЕР магазины. Удобная транспортная развязка, остановка в 200 м. Удобный проход к морю, 20 минут прогулочным шагом.

Квартира проверена в РОСРЕЕСТРЕ.

Звоните, Вы на расстоянии телефонного звонка от мечты жить у моря.
Быстрый показ, квартира на ключах!

9 550 000 ₽

187 254 ₽ за м²

Объект №160019

Кристина

(928) 438-33-85

написать в whatsapp
№ объекта:
160019
Дата размещения:
18.09.24