Дом 200 м² на участке 7 сот

муниципальный округ Анапа, село Супсех, Северная улица
Статус:
Активный
Тип:
Продажа
Нас. пункт:
село Супсех
Комнат:
6
Этажей
2
Общая площадь:
200 м²
Площадь участка:
7 сот
Фасад:
16 м.

🏡 Дом строился для себя.

Без экономии на материалах и работах. С прочностью и качеством в связи с этим торг не совместим, благодарим за понимание. 🤝

Конструктив:
* Стены — блок 32 см с утеплением (минвата 5 см) и облицовочным кирпичом;
* Фундамент — монолитная плита + ленточное основание;
* Межэтажное перекрытие — железобетонная плита 20 см;
* Чердачное утепление — минвата 30 см;
* Крыша утеплена и покрыта мягкой черепицей;
* Стены оштукатурены — готовы под покраску или обои.

⚡ Коммуникации и техническая часть:
* Газ подключён — установлен двухконтурный газовый котёл Ariston;
* Центральные коммуникации: газ, вода, канализация;
* Электричество — 15 кВт;
* Качественная электрика;
* Проводка под Wi-Fi;
* Во всех комнатах подготовлены выводы под кондиционеры;
* Подготовлены точки подключения ТВ;
* Отдельно спроектированная котельная.

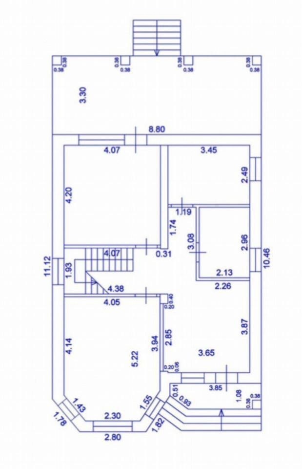
Первый этаж:
* Огромная входная группа;
* Просторный холл;
* Отдельная кухня с выходом на крытую террасу 30 м²;
* Гостевая спальня;
* Большой санузел;
* Котельная;
* Просторная гостиная (можно использовать как спальню).

Широкая удобная лестница и большое панорамное окно на два этажа создают ощущение второго света и наполняют дом естественным освещением.

Второй этаж:
* 4 спальни;
* 1 спальня с балконом;
* Ванная комната.

🌿 Участок и двор
7 СОТОК ИЖС 🔥
* Широкий двор, вымощенный плиткой;
* Подготовлена зона под оригинальный бассейн (как взрослым, так и деткам) — все коммуникации уже выведены;
* Территория под барбекю и баню;
* Красивый однотонный забор по периметру;
* Фасадный забор из кирпича под цвет дома;
* Выводы под систему автополива по периметру забора, в зоне озеленения;
* Ворота с электроприводом;
* Подготовка под домофон;
* Асфальтированный подъезд.

📍 Инфраструктура и локация
До города — не более 2 минут на автомобиле, быстрый выезд по асфальтированной дороге.
До моря — всего 2,5 км.
Вся инфраструктура в 2–5 минутах пешком, что создаёт комфортное проживание круглый год.

Школа «Эврика», спортзал World Class,
ТРЦ «Красная Площадь», магазины и сервисы.
Пляж доступен в 10 минутах как галечный, так и песчаный.
Рядом развивается крупный жилой проект «Хозяин Морей» (20 га) с детскими садами, парками и зонами отдыха — район активно растёт и дорожает.

📑 Документы
* Один собственник;
* Без обременений;
* Юридически чистый объект;
* Возможен видеообзор;
* Возможна дистанционная сделка из любой точки РФ.

#домуморя
#домАнапа
#домСусех
#недвижимостьАнапа
#домудоморя
#купитьдомАнапа
#частныйдом
#домдлясемьи
#загородныйдом
#новыйдом
#коттеджАнапа
#домсучастком
#домвпригороде
#жильеуморя
#домподключ
#домспланировкой
#инвестициивнедвижимость
#домбезобременений
#дистанционнаясделка
#экологичноежилье.

19 600 000 ₽

98 000 ₽ за м²

Объект №172760

Артур

(928) 882-23-14

написать в whatsapp
№ объекта:
172760
Дата размещения:
11.07.25