Дом 160 м² на участке 5 сот

муниципальный округ Анапа, станица Анапская, Уютный тупик
Статус:
Активный
Тип:
Продажа
Нас. пункт:
станица Анапская
Комнат:
5
Этажей
2
Общая площадь:
160 м²
Площадь участка:
5 сот
Фасад:
18 м.

Современный дом в центре станицы Анапская.

В доме выполнена предчистовая отделка.
До Магазина и остановки общественного транспорта 15 минут.
Соседи прекрасные, все семейные.Школа №12 в 10 минутах как и 3 детских сада.
ГАЗ, СВЕТ ВОДА СЕПТИК

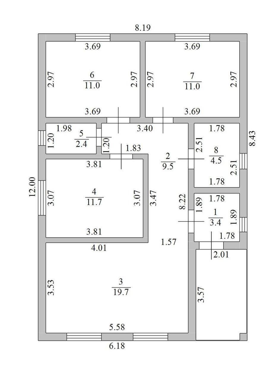
Дом общей площадью 160 кв2, выполнен из кирпича;в двух этажах удобная планировка.
ИНФРАСТРУКТУРА:

Образовательная инфраструктура станицы Анапская представлена двумя школами №12 и №21, есть пять муниципальных детских сада,

В Станице Анапской, имеется свой рынок строительных материалов “Казачий” и продуктовый рынок “Николаевский”, он же является основным ЦЕНТРОМ АНАПСКОЙ.

Достопримечательности Православные храмы
Храм Вознесения Господня;
Часовня святого Николая Чудотворца.
мемориал Воинской Славы с Вечным Огнем, БОЛЬШОЙ ДЕТСКИЙ ПАРК.

Проверено в росреестре.

Этот дом — отличное место для жизни в спокойствии и уединении, при этом всего в нескольких минутах от всех благ цивилизации.
Звоните прямо сейчас!
Полное юридическое сопровождение сделки, документы проверены в Росреестре!

ЗВОНИТЕ или ПИШИТЕ, и скорее записывайтесь на показ !
С уважением к вашему времени Виктория Васильева.

16 500 000 ₽

103 125 ₽ за м²

Объект №178640

Виктория

(928) 231-84-81

написать в whatsapp
№ объекта:
178640
Дата размещения:
27.01.26