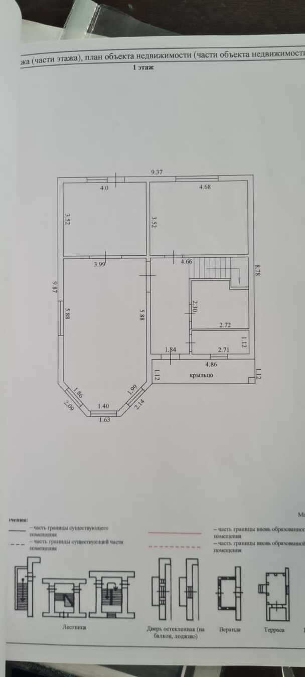
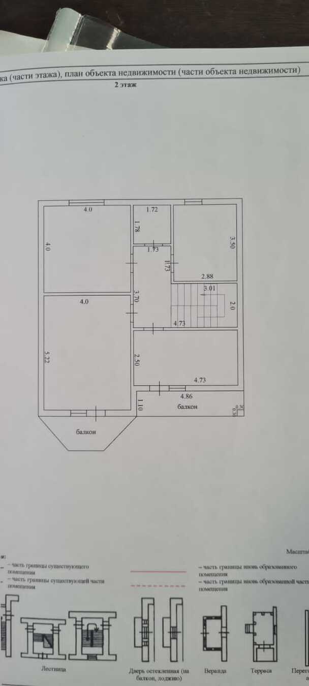
Дом 165 кв.м на участке 5 сот

муниципальное образование Анапа, посёлок Пятихатки, Камчатская улица
Статус:
Активный
Тип:
Продажа
Нас. пункт:
посёлок Пятихатки
Комнат:
4
Этажей
2
Общая площадь:
165 м²
Площадь участка:
5 сот
Фасад:
25 м.

Продается новый просторный 165 м 2 дом в 15ти минутах езды до Анапы и пешей доступности МОРЕ!

В доме 4 комнаты, гостинная, кухня, гардеробная, 2 с/у.
Подключено электричество 15 кВт, вода скважина, газ ТУ подведен к участку.
Разводка отопления, стяжка, разводка электрики, стены оштукатурены, отшпаклеваны, готовы к дизанейрским замыслам.
Натяжные потолки, потолочные светильники установлены.

Участок огорожен, сделан красивый вход.
Много свободной земли, плодовые деревья.

Подходит по ипотеку.
По всем имеющимся вопросам, звоните!

9 995 000 ₽

60 575 ₽ за м²

Объект №145348

Тамара

(928) 239-73-80

написать в whatsapp
№ объекта:
145348
Дата размещения:
16.11.23