Дом 214 м² на участке 4.7 сот

муниципальный округ Анапа, село Супсех, Мурманская улица
Статус:
Активный
Тип:
Продажа
Нас. пункт:
село Супсех
Комнат:
5
Этажей
2
Общая площадь:
214 м²
Площадь участка:
4.7 сот
Фасад:
15 м.

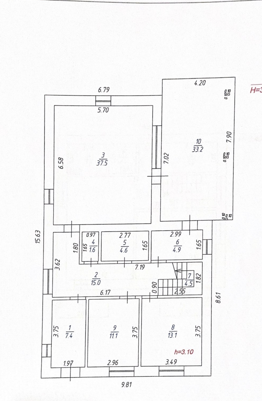
В срочной продаже шикарный двухэтажный дом в Супсехе.

214 м2 на участке 4,7 сот (ровный, правильной формы и без уклона).

1-й этаж:

- прихожая 7,4 м2
- коридор 15 м2
- кухня-столовая 37,5 м2
- с/у 1,6 м2
- ванная 4,6 м2
- котельная 4,9 м2
- 2 раздельные спальные комнаты (13,1 и 11,1 м2)
- терраса 33,2 м2

2-й этаж:

- 2 раздельные спальные комнаты (17,5 и 22,6 м2)
- гардеробная 3,9 м2
- кладовая 2,6 м2
- с/у 5,4 м2
- 2 балкона (4,5 и 4,7 м2)7

Строился добротно для себя и из качественных материалов!

Толщина стен 55 см (блок + утепление техноплекс + облицовка природным камнем туфом).

Дом теплый и сухой, просторные комнаты. Высота потолков в черновом варианте = 3,2 м.

Коммуникации (в дом не заведены).

свет: 15 кВт
канализация: септик переливной 8 м3
вода: скважина

Расположен на правой стороне недалеко от асфальтированной улицы.

До остановки, магазинов "Пятерочка", "Магнит", аптеки и прочей инфраструктуры 10 минут пешком.

Один собственник, обременений нет, быстрый выход на сделку.

17 800 000 ₽

83 177 ₽ за м²

Объект №171899

Татьяна

(938) 315-20-06

написать в whatsapp
№ объекта:
171899
Дата размещения:
20.06.25