Дом 114.6 м² на участке 5 сот

муниципальный округ Анапа, село Супсех, Кизиловая улица
Статус:
Активный
Тип:
Продажа
Нас. пункт:
село Супсех
Комнат:
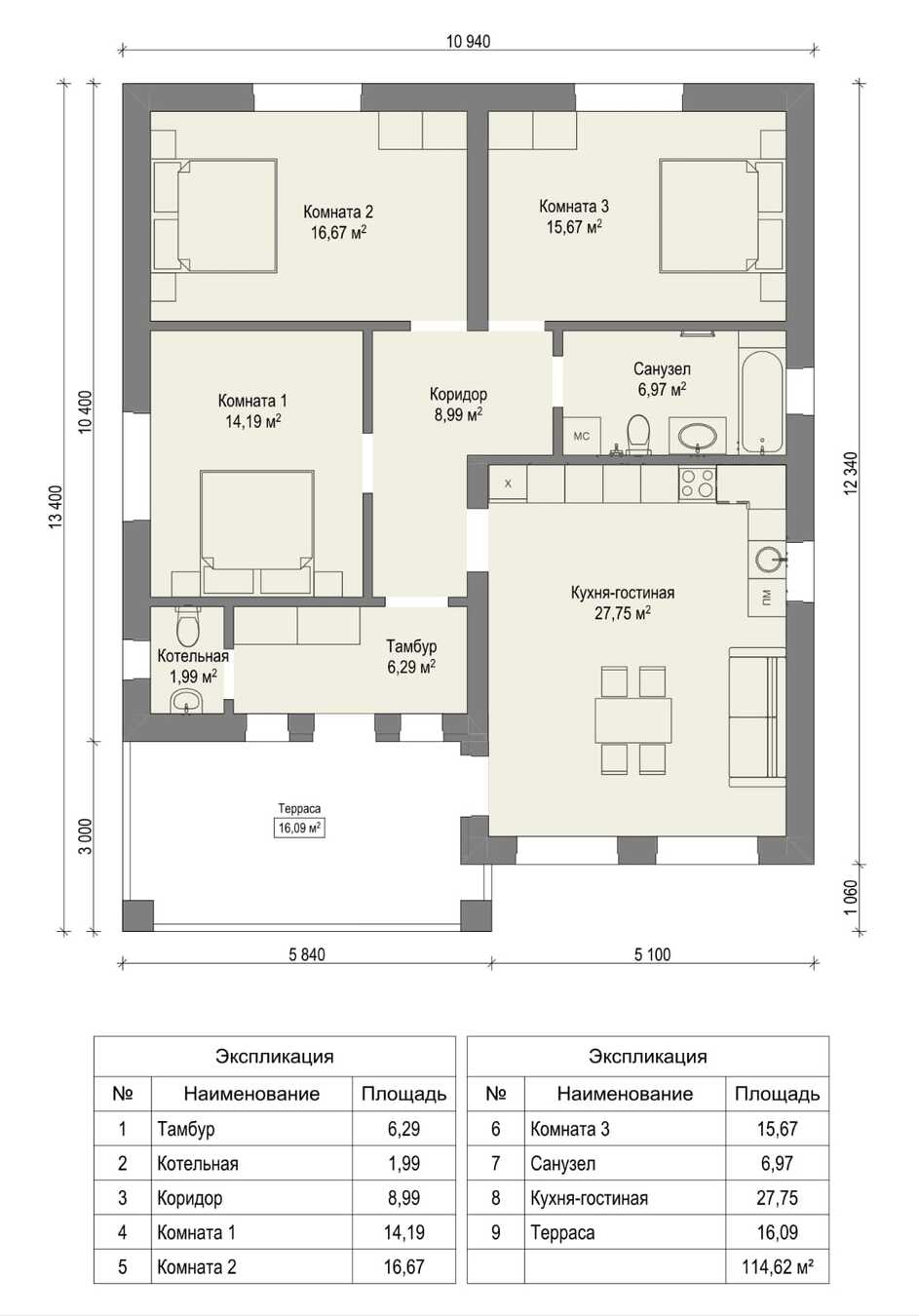
3
Этажей
1
Общая площадь:
114.6 м²
Площадь участка:
5 сот
Фасад:
25 м.

В продаже от собственника Дом площадью 115 м² расположен, в живописной экологически чистой зоне пригорода Анапы, в 15мин. от моря.
Предчистовая отделка позволяет вам реализовать свои дизайнерские идеи и создать уютное пространство по своему вкусу.
В доме предусмотрены три просторные спальни, идеально подходящие для семьи или гостей, а также светлая и просторная кухня-гостиная, которая станет центром домашней жизни и приятных встреч. 2 сан узла, гостевой и просторный основной.
- Центральное водоснабжение и скважина.
- Газовое отопление, тёплый пол по всему дому.
- Электрика разведена и смонтированно освещение.
- Натяжные потолки.
- Септик.
Расположение в экологически чистой зоне обеспечивает свежий воздух и тишину, а близость к морю — возможность наслаждаться морским бризом и пляжным отдыхом в любое время.
Этот дом — отличный выбор для тех, кто ценит комфорт, природу и близость к морю.

12 890 000 ₽

112 478 ₽ за м²

Объект №170939

Марина

(928) 223-13-24

написать в whatsapp
№ объекта:
170939
Дата размещения:
29.05.25