Дом 153 м² на участке 5 сот

муниципальный округ Анапа, станица Гостагаевская, Партизанская улица
Статус:
Активный
Тип:
Продажа
Нас. пункт:
станица Гостагаевская
Комнат:
3
Этажей
1
Общая площадь:
153 м²
Площадь участка:
5 сот
Фасад:
17 м.

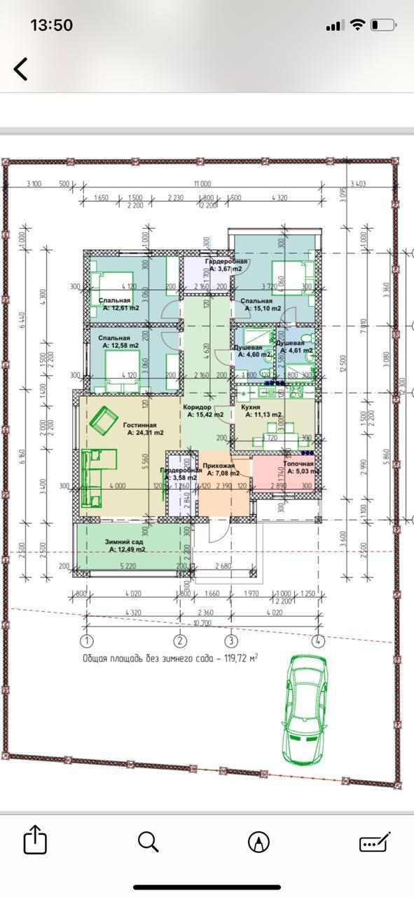
### Продаётся просторный дом в станице Гостагаевской – 153 м² на участке 5 соток с продуманной планировкой и развитой инфраструктурой

🏡 О доме:
Современный и уютный дом площадью 153 м² с рациональной планировкой, идеально подходящей для комфортной жизни семьи.

Планировка:
- 3 просторные спальни (одна из них – мастер-спальня с собственным санузлом и гардеробной)
- Совмещённый санузел (общий для гостей и двух спален)
- Отдельная кухня с возможностью размещения обеденной зоны
- Большая гостиная – светлое помещение для отдыха и приёма гостей
- Зимний сад – уютное место для релаксации в любое время года
- Гардеробная при входе – удобное хранение вещей
- Техпомещение (котельная) – всё инженерное оборудование вынесено отдельно

🚗 Участок и парковка:
- Участок 5 соток полностью огорожен по периметру
- Распашные ворота и обустроенное парковочное место для автомобиля
- Возможность размещения зоны отдыха, сада или огорода

⚡ Коммуникации:
- Электричество 15 кВт, 3 фазы – мощности хватит для всех бытовых нужд
- Центральное водоснабжение + скважина (двойное обеспечение водой)
- Септик (автономная канализация)
- Газ по улице – возможность подключения

📍 Расположение:
Станица Гостагаевская – живописное место с развитой инфраструктурой: магазины, школы, детские сады, кафе и всё необходимое в шаговой доступности. При этом здесь царит спокойная загородная атмосфера.

- До Анапы – около 15-20 минут на автомобиле (≈15 км)
- До моря – 20-25 минут (ближайшие пляжи – в Джемете и Витязево)

📌 Дополнительно:
- Один взрослый собственник – быстрая и прозрачная сделка
- Нет обременений – чистое право собственности

Идеальный вариант для тех, кто хочет жить в своём доме в тихом и экологичном месте, но с лёгкой доступностью к городским удобствам и морю!

📞 Звоните, чтобы назначить просмотр!

13 500 000 ₽

88 235 ₽ за м²

Объект №173182

Гульфия

(999) 417-03-02

написать в whatsapp
№ объекта:
173182
Дата размещения:
22.07.25