Дом 191.4 м² на участке 5 сот

муниципальный округ Анапа, СОНТ Колос, 3-й проезд
Статус:
Активный
Тип:
Продажа
Нас. пункт:
СОНТ Колос
Комнат:
4
Этажей
2
Общая площадь:
191.4 м²
Площадь участка:
5 сот
Фасад:
15 м.

Срочная продажа!‼️ Цена ниже рынка! Возможен обмен на квартиру в Анапе!
🏠Новый 2х этажный кирпичный дом в 10 км от Анапы, находится в прекрасном месте, с видом на горы 🔥
Построен в 2024 году! Один собственник! Подходит под ипотеку!
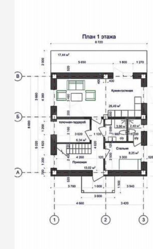
Общая площадь дома 191 кв.м + 2 террасы 22 кв.м и участок 5 соток.

B доме четыре cпальни, куxня-гocтинaя, два санузла.
- Выcoкoe качеcтво стpoительcтвa. Стены дома сделаны из кирпича.
(Мaтepиалы, пpимeнeнные при стрoитeльстве отвечают последним требованиям по экологичности, пожарной безопасности и долговечности)

‼️Удачная планировка, так как строили для себя!
- На первом этаже располагается просторная кухня-гостиная, спальня, котельная, большой сан узел.
- На втором этаже расположены три просторные спальни спальни, гардероб и сан узел.

- Крыша металлочерепица.

✅Участок позволяет расположить уютный уголок для летнего отдыха, вырастить сад с плодовыми деревьями или виноградником!

- Подключены все необходимые коммуникации ( свет, вода) Коммуникации : Электричество 15 кВт
Индивидуальная скважина для воды глубиной 25 метров !! Канализация биосептик!

♻️Инфраструктура:
В шаговой доступности магазины продуктовые и строительные, аптека. До Анапы регулярно ходит общественный транспорт.

❤️Не упустите возможность приобрести дом на юге в тихом месте от сезонной курортной суеты. И в то же время всего в 20-ти минутах езды на автомобиле до пляжей Черного моря и всех радостей курортного отдыха и санаторного лечения!

Такие дома настоящая редкость! Не верите?) Запишитесь на просмотр!
Остались вопросы? Звоните ☎️

Возможна дистанционная сделка. Реальному покупателю, ТОРГ!
Документы проверены в Росреестре и готовы к сделке!

6 990 000 ₽

36 520 ₽ за м²

Объект №177603

Наталья

(999) 415-57-97

написать в whatsapp
№ объекта:
177603
Дата размещения:
09.12.25